Skip to main content
Projects News On The Market About Contact
Projects News On The Market About Contact
Youtube Instagram Twitter Facebook LinkedIn Pinterest
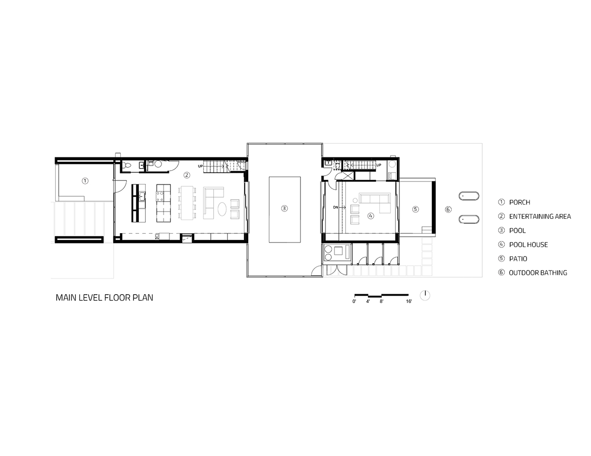
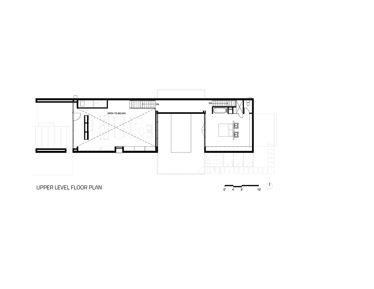
front-facade.jpg 02_The_Plan_Urban_Treehouse.jpg 03_The_Plan_Urban_Treehouse.jpg 04_The_Plan_Urban_Treehouse.jpg 05_The_Plan_Urban_Treehouse.jpg 06_The_Plan_Urban_Treehouse.jpg 07_The_Plan_Urban_Treehouse.jpg 08_The_Plan_Urban_Treehouse.jpg 09_The_Plan_Urban_Treehouse.jpg 10_The_Plan_Urban_Treehouse.jpg 11_The_Plan_Urban_Treehouse.jpg 12_The_Plan_Urban_Treehouse.jpg 08_The_Plan_Urban_Treehouse_Rendering_1.jpg 09_The_Plan_Urban_Treehouse_Rendering_2.jpg 03_The_Plan_Urban_Treehouse_Concept_Model_1.jpg 04_The_Plan_Urban_Treehouse_Concept_Model_2.jpg 05_The_Plan_Urban_Treehouse_Final_Model_1.jpg 06_The_Plan_Urban_Treehouse_Final_Model_2.jpg 07_The_Plan_Urban_Treehouse_Final_Model_3.jpg 01_The_Plan_Urban_Treehouse_Process_Sketches_1.jpg 02_The_Plan_Urban_Treehouse_Process_Sketches_2.jpg 10_The_Plan_Urban_Treehouse_Main_Level_Floor_Plan.jpg 11_The_Plan_Urban_Treehouse_Upper_Level_Floor_Plan.jpg 12_The_Plan_Urban_Treehouse_Site_Plan.jpg
Urban Treehaus
City: Salt Lake City
Year: 2018
Type: Residential
Contractor : Sausage
Dwell
New York Times
New York Times
The Plan